Workspace claim that there is "general support for the proposed building massing and scale" from local residents. This cannot really be supported, since so few attended the two exhibitions that were held.
It's therefore important now that you comment on these plans, and make sure your views are registered with the Lewisham planners. Tenants' opinions should be equally valuable as those of leaseholders – in fact they're more important, since some leaseholders don't even live here. Please don't be put off by the lack of anonymity in this consultation process. And you don't have to write an essay – just say you don't like it! Remember, the deadline is this Monday (end of the day should be fine)...
Email your objection to: planning@lewisham.gov.uk and include the application number DC/12/82000 and your name and address. Please also copy your objection to Joan Ruddock who has been following this development closely.
SOME POINTERS FOR YOUR OBJECTIONS...(may be added to but don't delay!)
Height and Massing
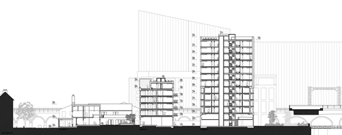
The 12 storey tower is over twice the height of any building in the immediate area and is therefore out of scale. The other three buildings are also too tall and too close to each other. For those facing the new development, the developers say"Magnitude of change is considered to be large as it will create a major change in view at a close distance to the east." But this is considered as "Moderate – Beneficial impact" since "Low quality views from some of the flats eastwards over the industrial roofscape will be replaced by closer views of the high quality new residential development." You lucky people!
Daylight, Sunlight and Overshadowing
They know it's a problem, but they reckon the effect will be minimal. With those most affected facing East/West it's actually more of a problem for the new proposed blocks. But according to Workspace's own studies Wilshaw and Holden facing Creekside will lose up to 20% of their light. That really is nothing compared to what might have happened if Workspace's original proposals had gone to Planning.
Cumulative Effects of Demolition and Construction
They admit that "the overall effect of dust upon nearby receptors is considered to be minor to major in the very worst case". Major, then, if any of your family suffer from asthma. There will also be up to 90 (one way) trips per day by construction vehicles (180 a day) going in and out of Faircharm. So, pollution, dust, noise, vibration and traffic for three or more years. Their studies do not include the potential Thames Water works on Deptford Church Street, nor acknowledgement of Lewisham's own development at Tidemill.
Parking and traffic
When the development is complete, the lack of parking is not considered to be a problem because "the low car use resulting from "Restricted parking" means that 77% of residents, and 69% of employees and visitors are expected to travel to the site by public transport or other non-car modes in the peak periods". Is this just wishful thinking? They expect the 148 new residential units to accommodate approximately 246 new people. If 77% use public transport, then 56 of them (23%) might drive, but there are only 28 spaces on the drawings (although the Environment Statement says there are 39). If they hope to create a couple of hundred new jobs and predict 50% will live locally, then there's still a potential 31 who'll want to drive to work. In December 2011 there were 60 spaces. Guess where they'll park...
Affordable Housing
This has been reduced from 30% (December 2011) to a measly 15%. 21 units out of 148, and there is only one 3-bedroom unit within the affordable section, when the housing shortage is at its most acute. The reduction is blamed on Lewisham for creating the Conservation Zone and making Workspace have to retain the buildings at the front that they had otherwise planned to knock down and build up to 7 storeys that would have created a dark canyon on Creekside.
Workspace's scheme to feather their own nest is disguised as a (less than) brilliant offer to the local authority to increase employment and housing opportunities, but as soon as the Tories said it was OK to reduce the number of affordable housing units in any development, Workspace leapt at the chance.
Materials
We haven't had time to read through the choice of building materials to make comment on them, except to say that dark grey brick is a huge mistake – wrong, wrong, wrong! Contrasted with that anaemic beige – yuk, yuk, yuk! This author would like to see lots of wood, but it's all a matter of taste, of course...
Waste Water Drainage
It appears they're proposing to use the existing mains and sewerage, yet Crossfields has huge drainage problems (Lewisham Homes doesn't even have a plan of the drains) and there's a few stinky manholes on Creekside. What will be the impact of 2-300 extra bums, showers, baths, washing machines, dishwashers, etc on this already vulnerable infrastructure?
Wildlife
Although Workspace drafted in Creekside Discovery Centre to help their landscape architects design an appropriate plan, and there will be 847 sqm of brown roof, plus bird and bat boxes around the site, the amount of light pollution from the residential development will play havoc with the ecology of the Creek.
Conservation Area
What are they doing plonking four monstrous blocks into a conservation zone? The area was designated a Conservation Area not just because of its buildings, but because of the unique environment of the Creekside area, and the activities and history of the community it covers, the very community which is now threatened by this development.
See Lewisham Council's guidelines on Urban Design in Conservation Areas.
New office spaces and commercial units
How come the Seager development couldn't find any takers for its office space? How come retail units in Creekside Village remain empty? Can this emphasis on small office type B1 Use (light industrial) workspaces for the Creative Industries that uses the reputation created by artists that are about to be, if not already, priced out of the area, really be justified?
Routes through the estate
Crossfields gardeners may wish to note the paths outlined in these proposals that refer to the linkways from and to Faircharm. Yes, it's back to that cycle link path that never got made. It's referred to on page 143 of the Design & Access Statement as "the missing link in the network". 'Deptford Urban Park' specialists WMM are the landscape architects on this project. The good news is that the Ha'Penny Hatch route has been identified as a priority link to be improved. Crossfields itself has been identified as a well-used pedestrian crossing to Deptford High Street, and as a good quality environment safe for pedestrians. About time we all stopped personally paying for the maintenance of a recognised public footpath then, eh.
SOME NOTES ON THE ABOVE...
Height and massing
That's Crossfields on the left (in both these plan drawings)...
Luckily for those on the ground floor of Holden and Wilshaw, the view of the new tower will be obscured by the existing building, as demonstrated in this diagram:
Policy 18 of Lewisham's Core Strategy makes the following statements regarding overshadowing (quoted on p.270 of the applicant's Environment Statement):
“Tall buildings will be considered inappropriate where they would cause harm to the identified qualities of the local character, heritage assets, landscape and open space features listed below: riverside environments where tall buildings might harm biodiversity interests through overshadowing.” (16.12)
“It is essential that new development does not adversely affect the amenity enjoyed by existing residential properties by unacceptably reducing the level of natural light received or creating an unsightly outlook.” (16.14)
There are plenty of 'wireline' photos showing the impact of the buildings on the surrounding environment, but none to show the impact if you were standing in front of the Faircharm entrance. Here's a wireline photo of Creekside Discovery Centre (page 162 of the Access & Design Statement):
Here's the same photo but we've filled in the 'wireline' to show the true extent of the proposed buildings:The impact to the Creek is considered "Moderate – Beneficial" since "the Creek environment and access to the waterfront will be significantly improved". Apparently the Creek "has the capacity to accommodate modern development alongside".
In the Consultation section of the Design & Access Statement, they state that Lewisham planners like the tower: "It was commented that the height of the tall building was considered appropriate given the scale of the emerging townscape in the wider area around the Creek" (p66).
And Lewisham's Design Review Panel (a volunteer group of local architects) are recorded as saying: "Overall the massing strategy is supported and the panel particularly welcomes the shift in scale from the retained buildings through bold and strong architectural forms...whilst the massing is largely appreciated the Panel do question the height and form of the three lower new blocks. Through both their scale and architecture these buildings appear too similar to each other..." (p67)
The Greater London Authority (GLA) says: "In relation to tall buildings and views.....the 6.5 metre tower setback is preferred. This option presents a better response to the constraint of the view corridor, and the spire of St Paul’s Deptford remains visible and immediately identifiable....The proposed massing of these buildings is generally acceptable, but as before, the treatment of the roof elements should ensure that they would not appear too bulky in views." (p 68)
This is disappointing and depressing to read, but it's also why Crossfields residents should object at this stage. Local residents' views have just not been taken into account.
Daylight, Sunlight and Overshadowing
An analysis of the overshadowing created by these tall buildings is detailed in Chapter 16 of the Environment Statement. (The results can be found in pp.509-518 of the Environment Statement appendices). A quicker read can be found in the "Non-Technical" version of this document (p. 14). They keep saying impact will be minimal, but this statement says otherwise:
"An assessment was undertaken to determine the likely effect of the proposed Development on the amount of daylight and sunlight experienced by residential buildings close to the Site and also the residential accommodation proposed within the Development itself. The assessment also considered whether the new buildings would overshadow amenity spaces within and around the Development. There would be no specific construction-related effects on sunlight, daylight or overshadowing. As construction work proceeds, the levels of daylight and sunlight received by adjacent properties would decrease, while the effect of overshadowing would increase as the Development progresses to completion, as would be expected."
"Owing to the Site currently consisting of relatively underdeveloped, low rise light industrial units, the urban nature of the surroundings and the scale of the Development, there would be some unavoidable adverse effects on the amount of daylight and sunlight experienced at some of the surrounding residential properties. As per the BRE guidance, the resultant daylight and sunlight levels would be consistent with other city developments."
"An accurate 3-dimensional model was developed to identify the effects of the Development on surrounding residential properties. This assessment was based on guidance published by the Building Research Establishment (BRE)." There is no picture of this model or any useful diagrams of the sunlight study we can show you, so here's another 'wireline' photo of the view from Ha'Penny Hatch, and a rendering of the tower from Frankham Street:
Cumulative Effects of Demolition and Construction
"During the demolition and construction works of the Development there would be some temporary combined effects, predominantly associated with townscape and visual effects, dust, noise, vibration and traffic. The Site-specific Environmental Management Plan would provide the mechanism by which temporary demolition and construction effects on surrounding receptors would be minimised. The cumulative effects of the Development, in conjunction with the construction of a number of other reasonably foreseeable schemes, were generally found to be minimal."
"However, even with mitigation in place to minimise the effects of dust generated from demolition and construction, it is difficult to completely eliminate such effects. Consequently, the overall effect of dust upon nearby receptors is considered to be minor to major in the very worst-case. However, these effects would be temporary and would depend on the type of work being undertaken, and its location within the Site."
However, during the 3-year construction period there are likely to be 9 construction vehicles per hour entering the site at peak construction times (that's just one-way trips), or 90 (one-way) trips per day but they make out that this is no more than the existing vehicle trips. This simply cannot be true, since noisy construction lorries are not currently turning up at Faircharm's entrance at all.
Again, none of this is considered mitigating. "As a result, the effects of vehicle emissions would be minor adverse during the peak construction phases but negligible at all other times."
Parking and traffic
28 spaces – or possibly 39 (reduced from the 60 projected in December 2011). 250 residents, 200 employees. They will all continue to park in the street and on Crossfields free of charge, while we pay for the maintenance of these areas (tenants pay too, you just don't see it in your statements). Workspace witter on:
"It is important to understand the type of tenants expected to occupy the new units at FCQ as this will further justify why the level of commercial parking proposed is robust and acceptable."
"Workspace Group caters for micro, small and medium business enterprises and smaller units (less than 40 sqm) will only be typically used by 2 to 5 employees. Almost half of the commercial units (21) proposed at FCQ will be 40 sqm or less... As part of on-going site monitoring, surveys at other existing Workspace Group sites show that 65% of commercial tenants live within 2 miles and the majority travel to/from work by public transport, walking and/or cycling. The main reason given by tenants to lease Workspace units is to maintain a flexible work/life balance and proximity of the unit to their home is a key factor. Of the current tenants occupying Faircharm Industrial Estate approximately 50% live within 2 miles of the site, showing that even now the site attracts local users.
"Therefore, actual employee numbers anticipated at FCQ will be much lower than traditional B1 office use and it is reasonable to assume given evidence of other Workspace sites that 65% of employees are likely to live within 2 miles of the site and choose sustainable modes of travel. On this basis, the modal split has been adjusted to reflect the low level of parking and these local circumstances."
In other words, they have devised a formula that suits them as much as it suits the local authority's desire to see a reduction in car useage. Meanwhile, Creekside Village built an underground carpark. There may be a pay-off here for Lewisham – to sell or rent some land for parking that is currently underused by Crossfields residents (and overused by Faircharm businesses). Any money so gained should be put back into Crossfields, possibly into grounds maintenance, reducing bills for all, including tenants.
Affordable Housing
The reasons given for the reduction in affordable homes in this scheme are typical. A development must be financially viable to be deliverable. Whilst Workspace acknowledges Lewisham's requirement of 42% affordable housing to tackle overcrowding (11,300 overcrowded households in the borough equating to 10.2% of all households in the borough), they blame Lewisham for making them retain the old Faircharm buildings A & C.
4.2 The decision to retain buildings A & C whilst assisting with the conservation aspect will have a direct impact of the viability of the scheme. The cost associated with these works is comparable to that of developing new works space but the retention of these buildings has meant that the applicant had not been able to optimise the amount of workspace on site.
4.6 ...the decision to refurbish buildings A&C has reduced the floor area potential of the scheme which restricts the value of the commercial element and constrains the overall viability of the project. In addition the replacement employment space, whilst a cornerstone of the development proposals in terms of creating a new space required for existing and new creative entrepreneurs, start-ups and small and medium enterprises to grow in, requires residential development to facilitate this transition. It would not be a viable development proposition to re-provide just commercial space as rents would have to rise very significantly making the development unsustainable.
4.7 On this basis the development relies heavily on the residential component to help fund the provision and improvement of the employment offer as well as enabling the package of business continuity associated with it. This inevitably requires the scheme to deliver a balance of outcomes as it is an unviable proposition to try and deliver the new employment proposals and a full package of planning obligations including affordable housing at the level targeted by policy.
Materials etc etc (run out of steam)
The architects draw their influences from the Creek's industrial heritage. The history of this site is that it was a chemical works. Reports are yet to be done on how toxic it is. The developers insist there will always be a barrier of concrete protecting its customers from whatever lies beneath the surface. Perhaps this why there is no underground car park planned. Or any significant archaeology...
This blog would like to acknowlege the infinite patience of Karakusevic & Carson Architects and their associates WMM. Nothing personal! Magnificent drawings, great renderings, lovely people, terrible clients.
Thanks to ER in Castell for suggestions and help. Please feel free to send us your own in the comments section – if you have time...




.jpg)
-500.jpg)
-500.jpg)
Excellent and welcome roundup of the facts surrounding the development, regrettably unless a major breach of the planning regulations occurs the development will go ahead (or if the planning department don't notice something or turn a blind eye to it)
ReplyDeleteIt's interesting to note the developments can go higher than the planning department has agreed - for instance, the main tower in the Loampit Vale development was supposed to be 24 stories (including the leisure centre at it's base) - now it's 27 stories - this is despite numerous references and drawings in the documentation to show that it was only going to be 24 stories.
Don't trust the Council planning department or the developers - and be cautious of support from MPs - New Labour was responsible for many of the ills that are being perpetrated at the moment - including the PFI agreement that is now threatening Lewisham Hospital. The Council also supports and pursues PFI agreements as well.